PROJECTS
×

About The Project

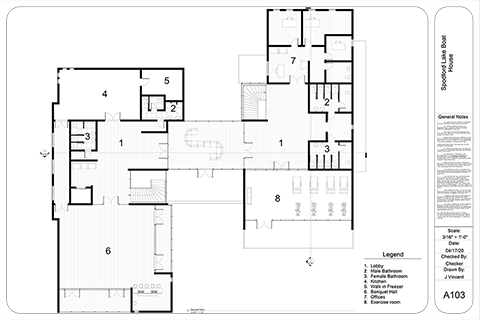
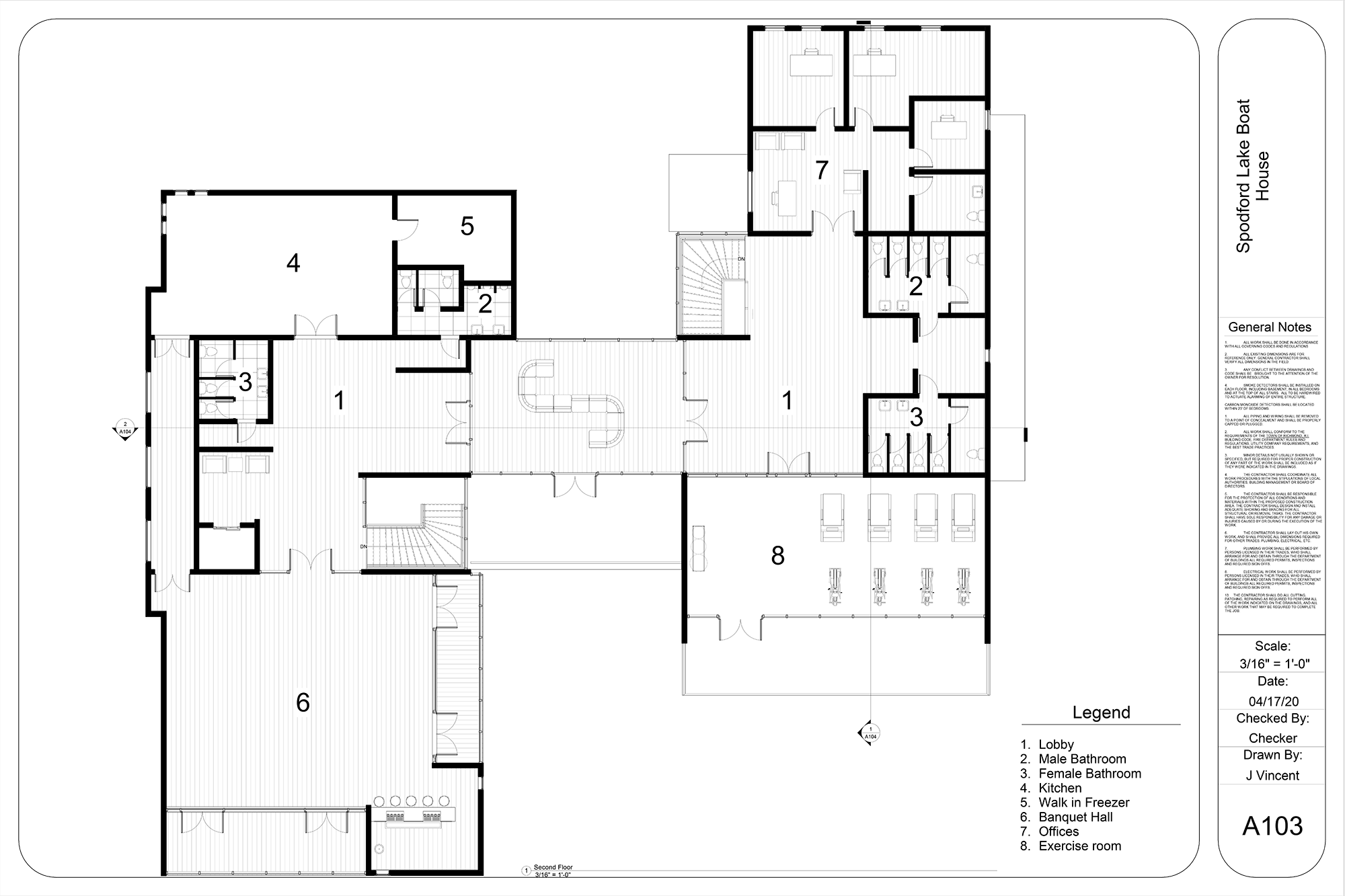
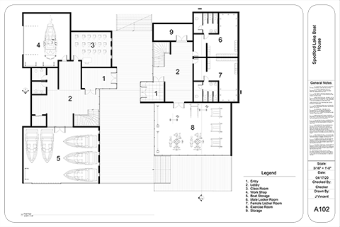
The boat club is an interesting project which forces us to really look at the site and figure out how to best utalize the land provided to create the best product.

Located on a thin & steep plot of land our client has asked us to create a boat club which will host parties, classes, boat storage, workshop, and gym.

To best create what our client is looking for I created two seperate buildings that are conencted via a bridge on the second floor. One side consists of more private areas and the other consists of more public areas.

The other idea I focused on is privacy and views. All walls that are facing the street and touching properties are solid walls, while walls facing inward and towards the lake are glass or filled with windows. The views are also hidden has the street level parking is surrounded by trees and shrubbery which makes it impossible to see the view from the street. As you walk down the staircase to the main buildings you get a framed view which will highlight the lake.